contatore utenti connessi

€ 0 to € 2.000.000

Other Features
Advanced Search

€ 0 to € 2.000.000

Other Features

AMPIO BILOCALE NUOVA COSTRUZIONE

€ 189.000
via Amerigo Vespucci, Civitanova Marche, Fontespina
add to favorites

AMPIO BILOCALE NUOVA COSTRUZIONE

Telefono:+39 338 4442042
Email:studioimmobiliare@casalconero.com

Contact Me

    Your search results

    Property Description

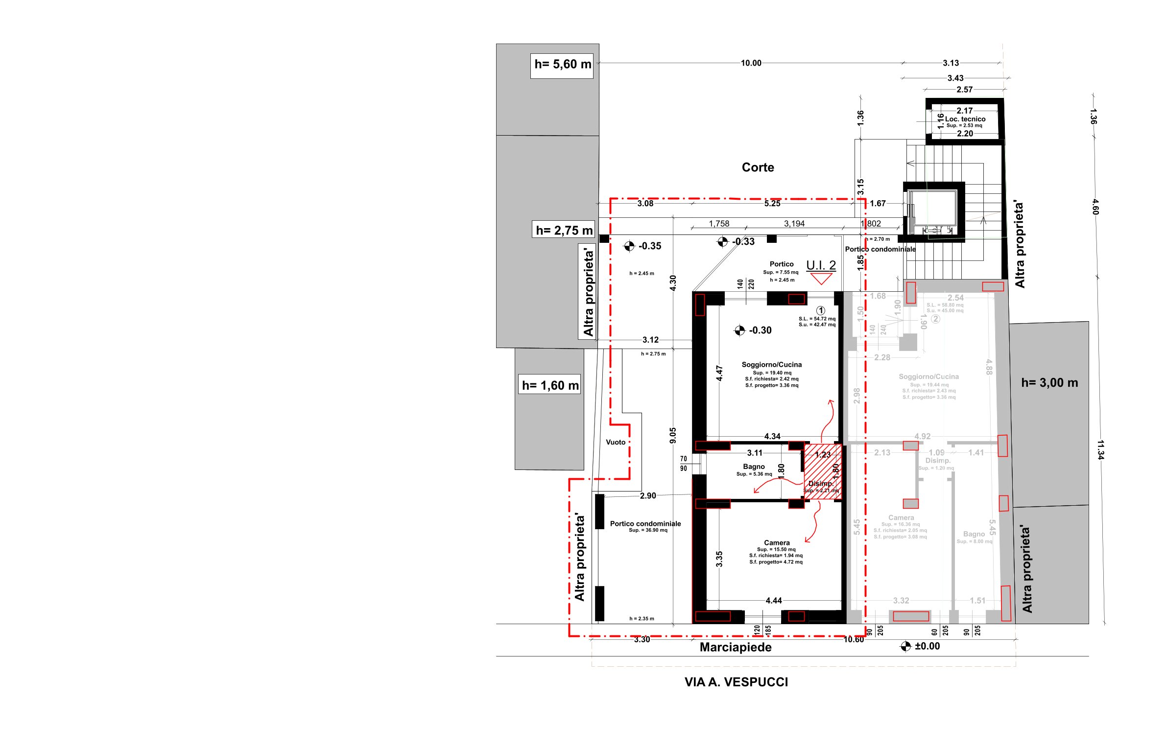
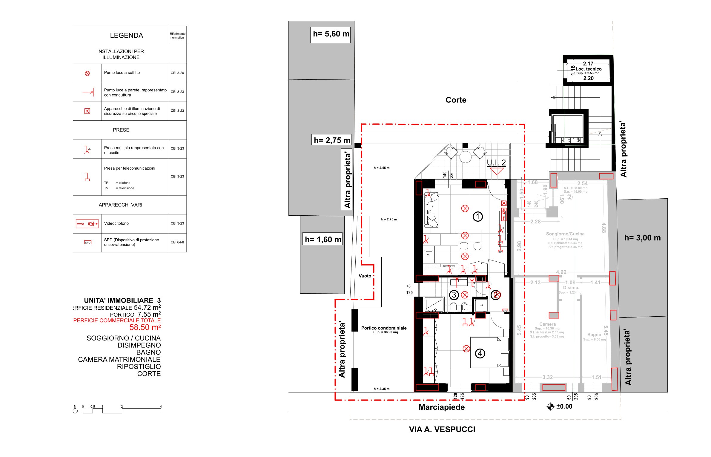
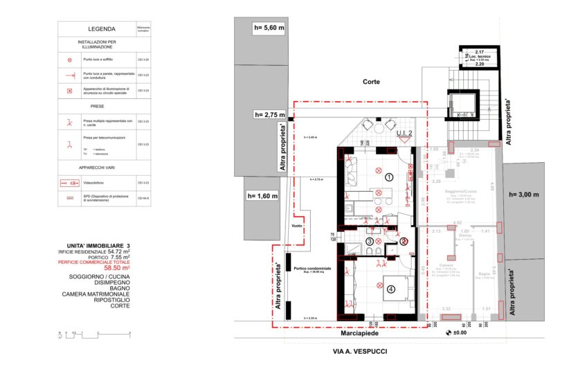
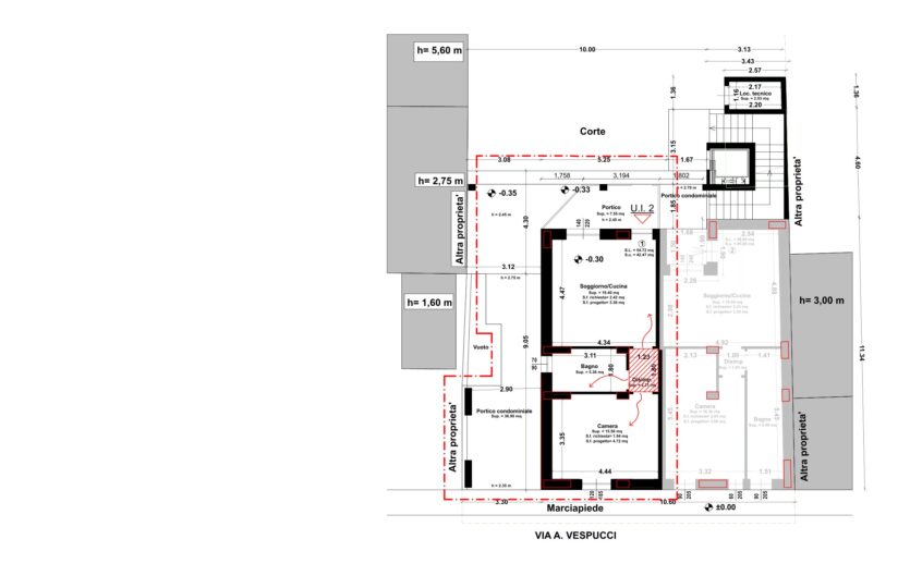
    ID Immobile Agenzia: CI303

    A meno di 300 metri dalla spiaggia del lungomare nord di Civitanova Marche, proponiamo in vendita un ampio bilocale di nuova costruzione, situato al piano terra di una palazzina elegante e moderna composta da sole 6 unità abitative (2 per piano). L’appartamento, con ingresso indipendente, offre una vivibilità rara per la sua tipologia grazie ai suoi 58,50 m² commerciali e 54,72 m² abitativi, oltre a un comodo portico esclusivo di 7,55 m² perfetto per momenti di relax all’aperto.

    L’ingresso dalla corte privata conduce direttamente all’ampia zona giorno con angolo cottura, luminosa e ben distribuita, dotata di porta finestra che si apre sulla corte esterna. La zona notte comprende una camera matrimoniale di generose dimensioni e un bagno finestrato con doccia.

    La palazzina sarà realizzata in classe energetica NZEB (Nearly Zero Energy Building), il più alto livello di efficienza attualmente raggiungibile, grazie a tecniche costruttive all’avanguardia, elevata insonorizzazione e coibentazione. L’impianto di climatizzazione caldo/freddo sarà completamente canalizzato, senza split a vista, e garantirà massimo comfort con consumi minimi.
    Il fotovoltaico condominiale ad uso esclusivo delle parti comuni consentirà spese di gestione bassissime, abbattendo quasi totalmente i costi ordinari.

    La posizione è uno dei maggiori punti di forza: l’immobile si trova in una via chiusa accessibile solo ai residenti, tranquilla e riservata, e allo stesso tempo a pochi passi dalla strada principale che porta al sottopassaggio diretto alla spiaggia. Ideale come abitazione principale, casa vacanze o investimento a reddito.

    Punti di forza:
    – Nuova costruzione in classe NZEB
    – A meno di 300 metri dal mare
    – Ingresso indipendente e corte privata
    – Via chiusa e riservata, ottima privacy
    – Ampio bilocale (oltre 50 m² abitativi)
    – Impianto di climatizzazione canalizzato di ultima generazione
    – Fotovoltaico condominiale → spese minime
    – Capitolato personalizzabile

    Address: via Amerigo Vespucci
    Zip: 62012
    Country: Italia
    Property Id: 22533
    Price: € 189.000
    Property Size: 59 m2
    Property Lot Size: 60 m2
    Rooms: 2
    Bedrooms: 1
    Bathrooms: 1
    ID Agenzia: 0
    Anno Di Costruzione: 2026
    Riscaldamento: autonomo
    Climatizzatore: si
    Classe Energetica: A+
    Tipo Proprietà: intera
    Garages: no
    Infissi Esterni: Vetro / Legno
    Ascensore:
    aria condizionata
    porta blindata
    giardino privato
    impianto tv centralizzato
    cancelletto elettrico
    videocitofono
    non arredato

    Compare